Sold

94 Ring Rd, Alice River

SOLD for $550,000

3 1 4 4,000 m2

Peace & Privacy in Alice River!

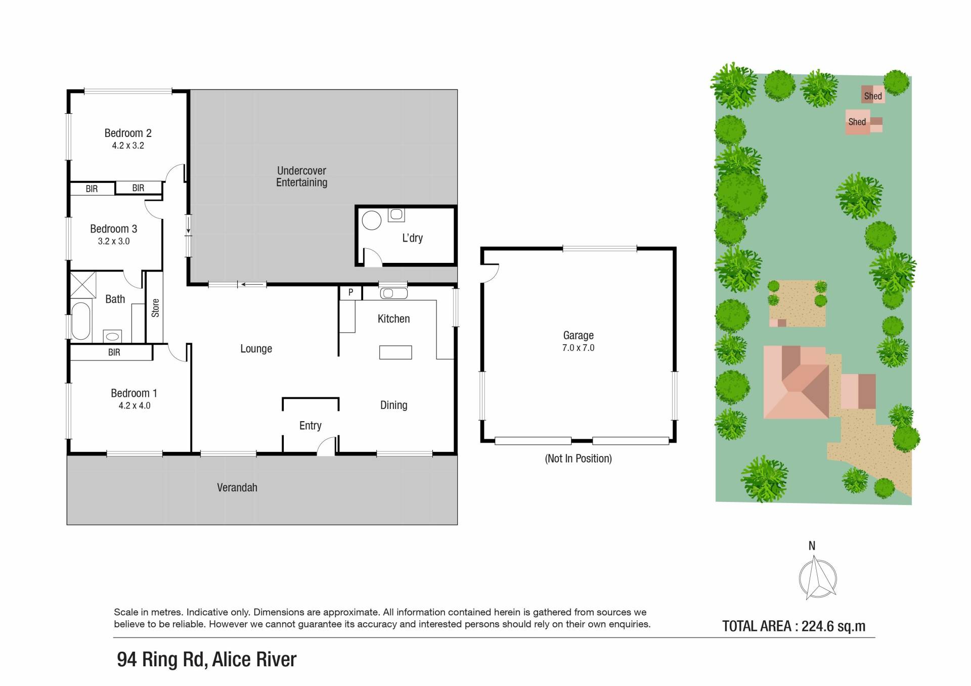
Situated on a 4,000sqm block surrounded by peace and privacy, this block home offers unlimited opportunity! Set back from the road this home features extra-large bedrooms, complete with built in wardrobes, and air-conditioning. The kitchen has been purpose built with the family in mind providing plenty of cupboard and bench space. Relax under the large under cover entertainment area over looking the in ground swimming pool. There is plenty of room for the tradie or storing cars, boats, or campers in the block 7m x 7m shed.

Property Features

  • 3 extra-large bedrooms all with built in wardrobes, air conditioning and ceiling fans
  • Open plan generous sized lounge room
  • Dedicated dining room or second living space with split system air conditioning
  • Family kitchen with wall oven, large induction cooktop, dishwasher, loads of cupboards and ample bench space
  • Main bathroom with separate bathtub, shower and large vanity
  • Built in linen/storage cupboard
  • Large laundry
  • 224.6sqm under roof

Outdoor Features

  • 4000sqm
  • Stunning inground swimming pool with rock feature
  • 7m x 7m block shed complete with work bench, air conditioning, ceiling fan and roller doors
  • Double gate side access
  • Water and taps run down to the back of the property on both sides
  • Full length of the property front verandah
  • Extra large undercover entertainment patio with ceiling fans
  • 3m x 3m lawn locker with double car carport attached
  • Chook pen or bird avery at the back of the property

Don’t miss this prime opportunity to secure an Alice River property.

Call Michael 0414420404 or Carrie 0402330255 today to arrange an inspection.

 

3 1 4 4,000 m2

Details

Address 94 Ring Rd, Alice River
Price SOLD for $550,000
Property Type Residential
Property ID 290
Category Acreage Semi-rural
Land Area 4,000 m2

Tools

Share This Property