Sold

Unit 14, 30-32 Martinez Ave, West End

SOLD for $395,000

3 2 2

Relax on your large deck with striking lake views!

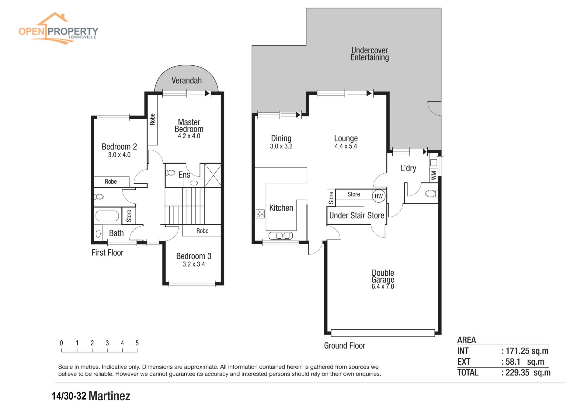
This townhouse is a must to inspect offering both space and privacy. With living spread across two levels, there is enough space for everyone. The highlight of the home is the expansive outdoor timber deck that overlooks the lake. Located in a highly desirable gated complex of the well known “Lakes”, West End and only a stone’s throw from Castletown shopping centre, professional services and only a few minutes to The Strand and CBD.

Property FeaturesUpstairs

  • 3 generously sized bedrooms all with built in wardrobes, split system air conditioning and ceiling fans
  • Master bedroom with private balcony overlooking the lake complete with ensuite, built in wardrobes, split system air conditioning and ceiling fan
  • Main bathroom with bathtub, vanity, and separate toilet
  • Storage/linen cupboard
  • Under stair storage room

Property FeaturesDownstairs

  • Large kitchen with dishwasher, loads of cupboard and bench space, plus microwave and fridge spaces
  • Open plan living and dining space with split system air conditioning and ceiling fan
  • Loads of storage with the built in cupboard in the living room
  • Broom/storage cupboard
  • Internal laundry with direct access to the side courtyard and clothes
  • 3rd toilet

Outside Features

  • Huge under cover entertainment deck overlooking the lake and with views to castle hill complete with ceiling fans, lighting and shade blinds
  • Double lock up car garage
  • Side gate access
  • Complex with large inground swimming pool
  • Privately gated complex

Call Michael 0414420404 or Carrie 0402330255 today to arrange an inspection.

3 2 2

Details

Address Unit 14, 30-32 Martinez Ave, West End
Price SOLD for $395,000
Property Type Residential
Property ID 350
Category Apartment

Tools

Share This Property