Sold

23 Waikiki Tce, Mount Low

SOLD for $475,000

5 3 3 710 m2

Modern Duplex

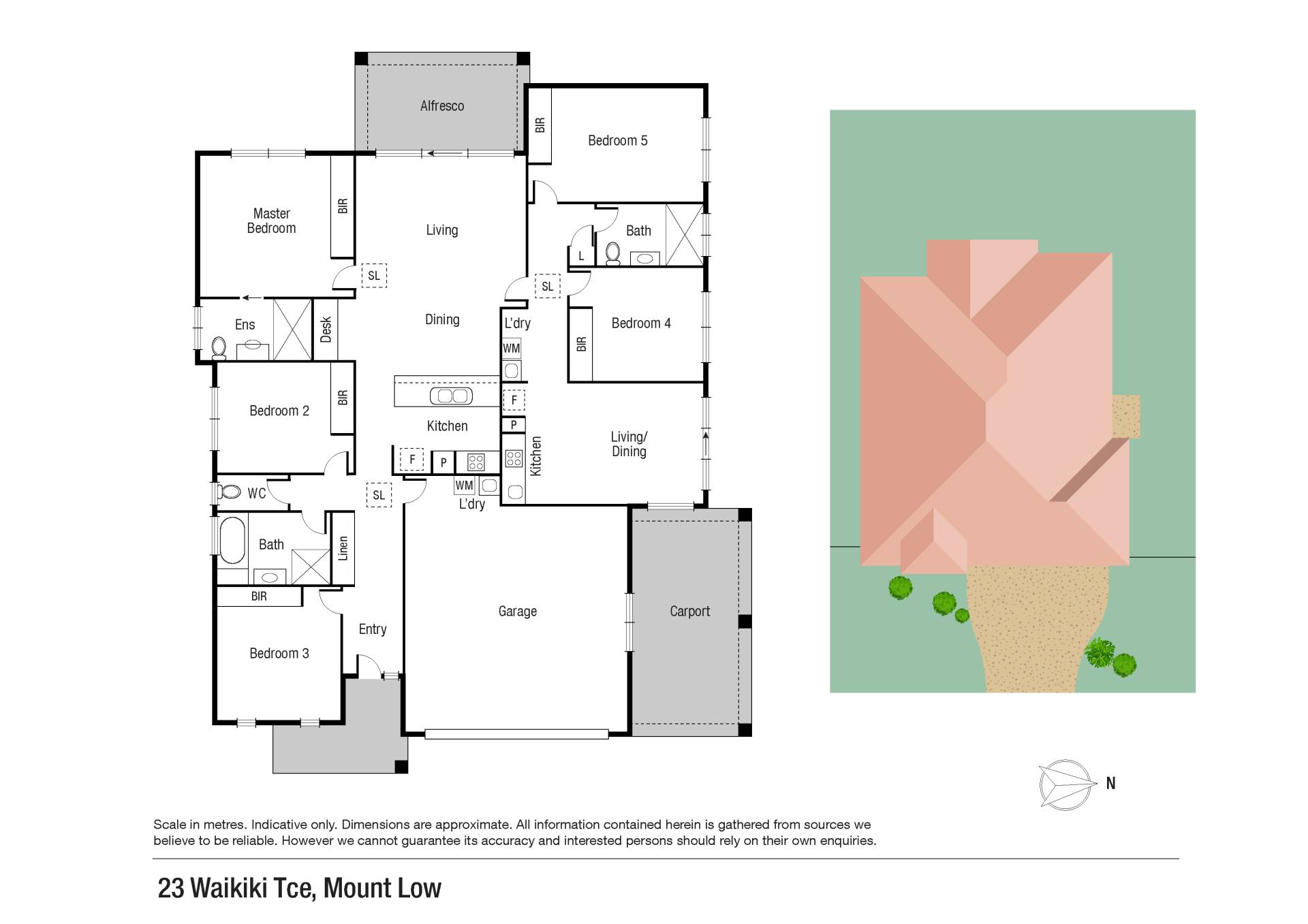
This modern duplex offers living for the largest of families or secure the internal door and have dual income. This duplex is cut above the rest and has been previously very well tenanted. If you are the astute investor, put these to the top of your list!

Property Features

  • 5 bedrooms in total – 3 in one side and 2 in second side all with built in wardrobes
  • Master bedroom with ensuite
  • Tiled main open plan living and dining including purpose built in study nook
  • Modern large kitchen with stainless steel fixtures and large bench space
  • Main bathroom with bathtub, shower and vanity
  • Second side offers kitchenette with built in appliances
  • Second tiled living and dining
  • Second bathroom with shower, toilet and vanity
  • Airconditioned throughout
  • Laundry space to both sides

Outdoor Features

  • Double lock up garage
  • Single car carport
  • Low maintenance lawns
  • Secure fencing to property
  • 2 letter boxes
  • 2 power meters

 Act quickly and call Carrie 0402330255 or Michael 0414420404 today!

5 3 3 710 m2

Details

Address 23 Waikiki Tce, Mount Low
Price SOLD for $475,000
Property Type Residential
Property ID 426
Category House
Land Area 710 m2

Tools

Share This Property