Sold

11 Gillingham Ct, Kirwan

SOLD for $500,000

4 2 2 592 m2

Immaculate Family Home

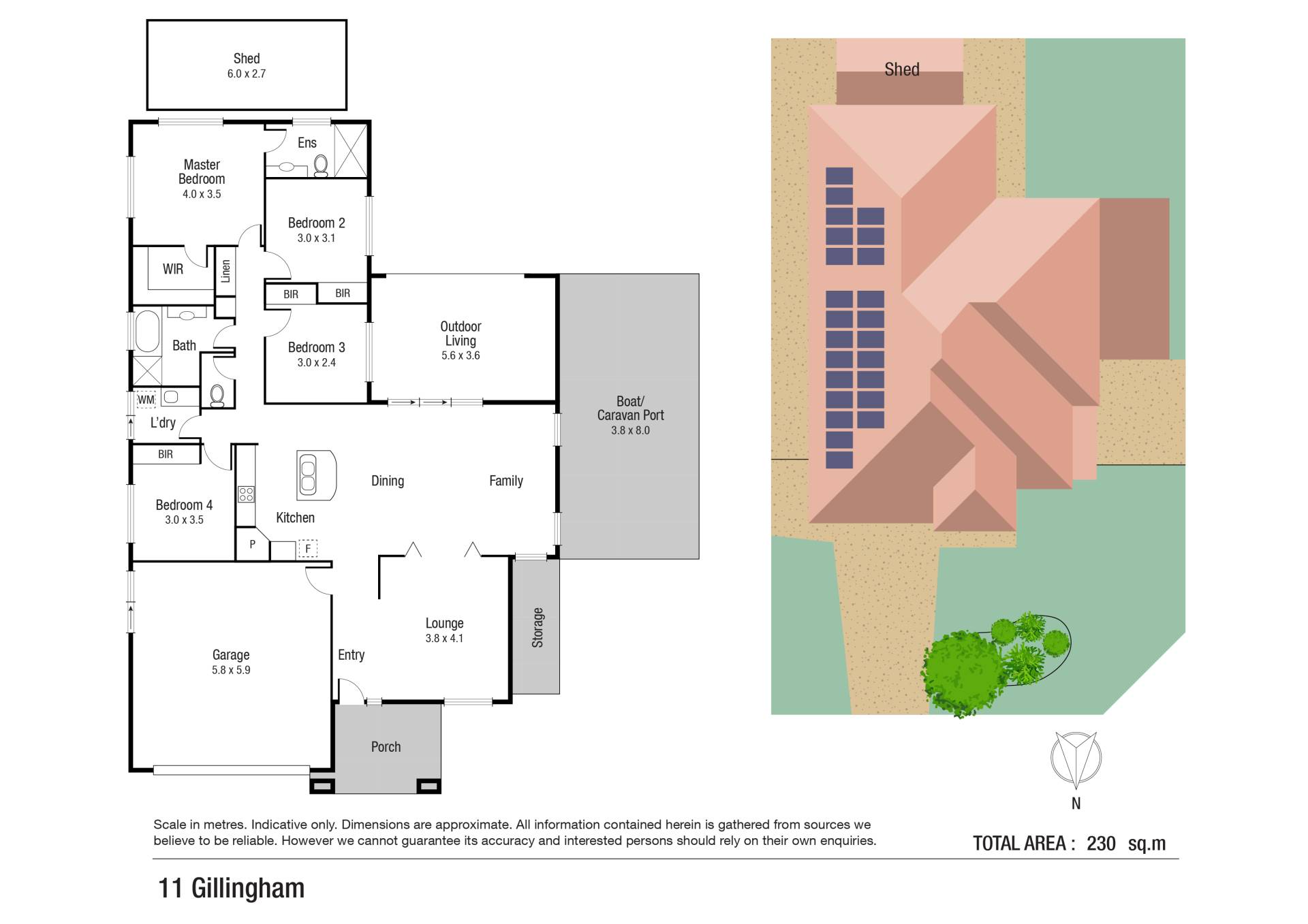
Positioned in the lovely Willowbank and only minutes to shopping centres, medical facilities and the Cannon Park Precinct for restaurants and cinemas, you will fall in love with everything this home has to offer. The home offers more than the usual with an extra-large awning ideal for storing the van or boat plus there is the bonus of the colour bond shed with roller door tucked neatly away at the rear of the property. Inside the home is immaculate and offers modern fixtures and fittings throughout.

Property Features

  • 4 bedrooms all generous size with built in wardrobes, ceiling fans and air conditioning
  • Master bedroom with spacious walk-in wardrobe and modern ensuite including shower, toilet and vanity with ample storage and bench space
  • Modern family kitchen with large island bench including storage, pantry, double fridge space and the benefits of instant gas oven/cooktop plus loads of overhead cupboards
  • Open plan living/dining adjacent the kitchen and opening to the large entertainment area
  • Dual living spaces with plantation shutters in the partition wall allowing for both spaces to either be closed off for independent quietness or opened up for the two spaces to interact
  • Family size bathroom with separate bathtub and shower plus larger vanity
  • Internal laundry with storage cupboard and bench space plus nearby linen cupboard
  • Fully air conditioned and ceiling fans throughout
  • Freshly painted

Outdoor Features

  • Stacker slider doors open to the large alfresco entertainment area including gas outlet
  • 6m x 2.7m colour bond shed with roller door
  • 3.8m x 8m awning with concrete slab perfect for storing the van or boat
  • Double gate access to the front of the property for access to the awning
  • Double lock up garage with electric roller door
  • Double gate access to the back yard off of the side of the property
  • Storage locker/shed to the front of the awning
  • Irrigation with low maintenance gardens
  • Larger corner block
  • Fully fenced
  • Solar

Feel free to contact Michael 0414420404 or Carrie 0402330255 for any further information.

4 2 2 592 m2

Details

Address 11 Gillingham Ct, Kirwan
Price SOLD for $500,000
Property Type Residential
Property ID 459
Category House
Land Area 592 m2

Tools

Share This Property