Sold

2 Bela Ct, Aitkenvale

SOLD for $380,000

3 2 1

Location & Value!

Searching for the ideal location? Look no further than 2 Bela Court. Bela Court is centrally located to everything; Townsville General Hospital, Lavarack Barracks, James Cook University, Stockland Shopping Centre and much more.

The property is move in ready with the hard work completed, freshly painted throughout and new carpets to all bedrooms. You’ll not be disappointed with the functionality and space.

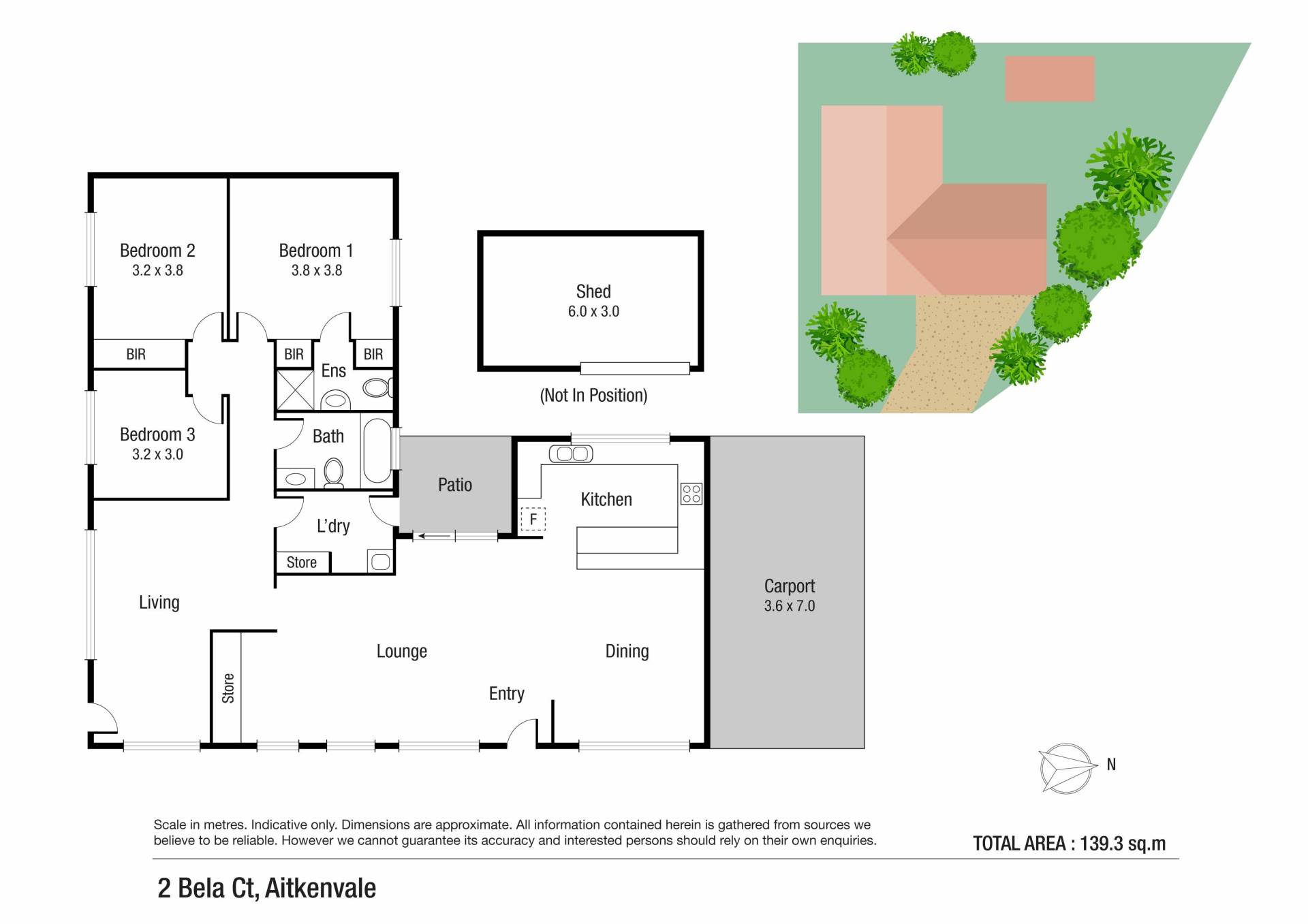
Property Features

  • 3 large bedrooms with a blend of built in wardrobes, air conditioning and ceiling fans
  • Master bedroom with ceiling fan and split system air conditioning
  • Open planning tiled living and dining with loads of natural light, ceiling fans
  • New carpet to second living area with split system air conditioning and ceiling fan
  • Large family kitchen with loads of bench space, blend of large draws and many cupboards plus gas cook top and electric oven
  • Main bathroom with shower/bathtub, large vanity and toilet
  • Air conditioning and ceiling fans

Outdoor Features

  • Single car carport
  • 6m x 3m tradies shed with power and lighting
  • Easy low care manicured gardens
  • Fully fenced

This property is suitable for both buyers looking to move straight in and enjoy, or is also ideal to the investor. At this location and this price, it won't last long.  Call Michael 0414420404 or Carrie 0402330255 today to arrange an inspection.

3 2 1

Details

Address 2 Bela Ct, Aitkenvale
Price SOLD for $380,000
Property Type Residential
Property ID 495
Category House

Tools

Share This Property