Sold

5 Bell Miner Way, Bohle Plains

SOLD for $473,000

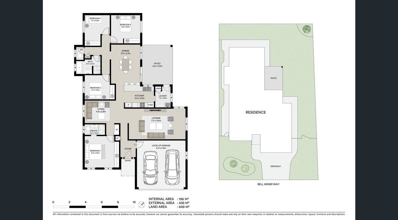
4 2 2 649 m2

Price Range Guide updated

This property is situated within the popular, well sought after residential estate of ‘Kalynda Chase’. The home is within 100 meters of a local park, close proximity to Major Shopping Centres and Local Schools. The property offers 4 large bedrooms, 2 bathrooms and 2 car garage. 

Property Features

  • 4 large tiled bedrooms with new split air conditioning and built in robes
  • Master bedroom with ensuite including a dual shower recess, vanity unit and toilet
  • Modern kitchen with electric cooktop, wall oven and rangehood
  • Main Bathroom with bath tub, shower recess, vanity unit and toilet suite
  • 3 large separate tiled living areas
  • Internal laundry with stainless steel tub and plenty of cupboard space
  • Quality tiled flooring throughout - low maintenance
  • The home has been recently repainted internally in 2022

Outdoor Features

  • Large entertainment area
  • Fully fenced allotment
  • Good size yard
  • Concrete paths around the house perimeter

The property current market rental appraisal is $530pw to $560pw.

This is a fantastic family home or property investment opportunity, in a popular suburb close to all amenities.

Call Adrian on 0408733180 or Michael on 0414420404.

4 2 2 649 m2

Details

Address 5 Bell Miner Way, Bohle Plains
Price SOLD for $473,000
Property Type Residential
Property ID 510
Category House
Land Area 649 m2

Tools

Share This Property